游戏百科

144㎡简约新房,全屋配色让人极度舒适!

装修前一定要做足功课,明确自己的需求与设计师有效的沟通,这样才能让装修效果更加满意。今天要分享的是一套建面144㎡的装修

装修前一定要做足功课,明确自己的需求与设计师有效的沟通,这样才能让装修效果更加满意。今天要分享的是一套建面144㎡的装修案例,和大多数人一样,屋主也是第一次装修,前期的准备有效的沟通,新房完工效果基本装成自己想要的样子。

全屋配色让人极度舒适,以木、白、灰为主的低饱和度色系营造出宁静淡雅的居家氛围,进门就让人感觉到轻盈放松,我决定再买房一定照着装。下面就一起来看看吧!

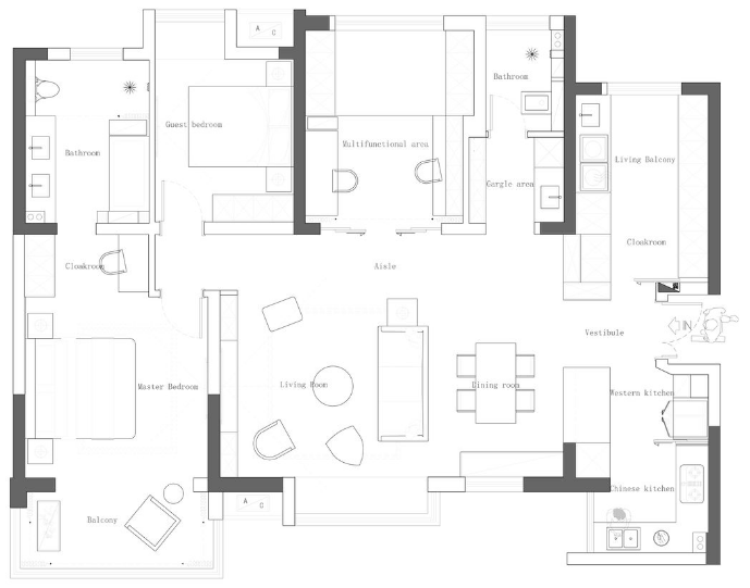
原始户型图,建筑面积144㎡,大横厅布局。

装修布置图,结合屋主生活习惯和需求,把原有阳台打通纳入室内,扩大使用面积。同时拆除客厅与储物间隔墙,打造成多功能房。

推开入户门,就能感受到家的温馨舒适。灰色地砖围塑出玄关区,宠物造型的换鞋凳,既满足了换鞋的舒适,又可以是空间装饰,一举两得。通高鞋柜,底部采用悬空设计并嵌入灯带,提高日常使用舒适,同时保持玄关区的整洁。

与鞋柜紧邻的是一道长虹玻璃推拉门,透光不透视,隔断玄关与衣帽间。

推拉门打开步入衣帽间,原储物室与阳台打通后,空间宽敞通透。考虑到居家动线和便利,将衣帽间和洗衣房结合在一起,左右两侧均设计通高储物柜,提高收纳不浪费空间。可旋转穿衣镜不影响储物柜开关。洗衣机、烘干机、壁挂式洗衣机和脏衣篓,整洁有序的布置不影响美观。

大横厅格局,没有隔断的影响空间宽敞明亮,要是在有个独立阳台简直完美。看似随意的家具布置,透露着轻松闲适的慢生活节奏。电视墙直接尺寸定制,提前做好电路布置,正面没有多余的线露出来,整体美观实用。

舍弃了厚重的茶几,利用小小的桌几替代,占用空间少灵活又实用。地面铺设地毯,减少噪音的同时又方便享受席地而坐的舒适。飘窗打造成喵星人的活动空间,猫爬架布置在边角,不影响采光。

餐厅与仅靠西厨,一套简易的木质桌椅,占用面积少空间通透。靠墙定制餐边柜,长1.6m收纳空间基本够用。

改造后实现了中西厨格局,冰箱外移到西厨空间,让中厨空间更宽敞。吧台兼西厨尺寸高度设计的1m,搭配上木质星星灯,给居家增添一丝情调。

次卫设计考虑很充分,将洗手台外移不仅扩大卫浴空间,还提高日常使用便利。洗手台和储物柜采用悬挂式设计,底部则是喵星人的内务府和摆放扫地机器人。卫浴白砖突显明亮,几何元素的介入,让空间更活泼。

拆除原有隔断墙将空间打通,黑框玻璃移门大方通透,隔断空间又不影响采光。内部纱帘的介入,虚实层次中透露出朦胧美。

阳台纳入室内扩大使用面积,同时规划出多功能房,集手工、办公、休闲、娱乐、收纳一体。25cm高的地台设计,休闲储物两不误,外表看似不高收拾一下还是能放不少东西的。

次卧看似简易的搭配,细节中却透露着简约之美。深灰色的床头背景,搭配金属色的照明灯,增加空间层次又多了一份精致。飘窗增加了木饰面板,减少冰冷感提高舒适性,偶尔坐在飘窗看看窗外风景,还是很惬意的。

卧室深蓝色床头背景,丰富空间拉伸层次感。金属色的吊灯,星星和月亮造型的组合,在深蓝色背景映衬下,显得格外醒目。阳台纳入卧室扩大使用面积,让空间更加宽敞明亮。椅子、书架和地毯的组合,打造一处慵懒的休闲区。

主卧卫生间,以白色瓷砖突显明亮,辅佐木色实现冷暖呼应,让整个空间变得柔和许多。两个卫生间淋浴均采用浴帘,灵活空间宽敞,也减少了清洁玻璃的麻烦。金色浴室柜拉手和壁龛瓷砖变化,简单精致。浴缸和淋浴结合,不需要再为选择那个而烦恼。