
引 言
自《红楼梦》问世以来,宁荣二府的建筑布局便引起了学者们的关注与研究。早期研究者如周汝昌、杨乃济、徐恭时、葛真、关华山等人,主要依据文本描写对宁荣二府的建筑布局进行分析,比较多的涉及到文本中一些矛盾细节的探讨,却较少涉及二府建筑规制的系统性研究。

《红楼梦贾府建筑布局研究》,徐建平著,北京联合出版公司2023年7月版。
由于清代以前的王公府邸建筑遗存稀少,加之作者有意隐去了作品的具体年代背景,导致对宁荣二府建筑规制的认识存在较大困难。
近年来,关于古代建筑的研究多集中于四合院的构造或王公府邸的单体建筑,而对清代王公府邸的整体探讨则主要集中在恭王府、孚郡王府等少数实例上。
然而,这些府邸的总体布局与宁荣二府存在显著差异,进一步加剧了学界对宁荣二府建筑布局及规制的误解与模糊认识。
近年来,黄云皓、樊志斌、李艳芳、奚沛翀等学者的相关研究[1],为宁荣二府建筑空间的深入探索奠定了坚实基础。
与此同时,关于清代王公府邸的研究成果也日益丰富。2016年至2022年间,北京建筑大学陆续发表了《北京清代亲王府建筑空间形态研究》《北京清代郡王府的空间形态与建筑研究》《北京清代贝勒贝子府建筑形态研究》《清代北京镇国公府、辅国公府建筑空间形态及其保护利用研究》四篇硕士论文[2]。
这些研究对清代27座亲王府、15座郡王府、7座贝勒贝子府以及10座国公府进行了全面分析与解读,揭示了清代王公府邸建筑在空间形态上的普遍规律及其适应性调整的特点。这些成果为宁荣二府建筑规制的研究提供了全面的参照。
在撰写《〈红楼梦〉贾府建筑布局研究》[3]一书时,由于古代建筑文献材料的匮乏,笔者未能在书中对宁荣二府的建筑规制展开论述。

《红楼梦中的建筑与园林》
近年来,与古建筑相关的文献资料逐渐丰富,笔者在已有研究的基础上,对宁荣二府的建筑规制进行了更为深入的探讨。从明清时期王公府邸的建筑规制及建筑实践来看,宁荣二府的建筑布局与清代建筑规制高度契合。
本文旨在对这一研究进行系统梳理,以期为进一步理解和阅读《红楼梦》提供有益的参考与帮助。

一、明清两代王公府邸的建筑规制和实践
历朝历代都对本朝的宫室屋舍的等级制度作了规定,只是大部分已经散迭不存,很难找到一个十分完整的有关房屋等级规范的古代文献[4]。
从历史记载看,汉唐时一些巨宅规模侈大。比如隋汉王杨谅府邸有543亩之巨,唐太平公主府有285亩,唐代名将郭子仪的府邸有195亩,但这些巨邸内部的规划布置已经无法详考[5]。

《中国园林:历史、艺术与建筑》
宋代对王府建筑的描述几乎不见于史籍[6]。明清时期,有关王公府邸建筑规制的文献材料已经相对完整。
北京也有大量的清代王公府邸的建筑实物作为参考[7]。
从《明史》《明会典》的记载看,明代建筑规制主要规定了主要殿宇(堂屋)的重(进)数,正门及主殿的间数(开间)、檩数(进深)和台基高度,以及对琉璃、斗栱、色彩、彩画、脊兽等的使用限制。
明代王府规制经历了洪武4年、洪武7年、洪武9年、洪武11年、弘治8年等几次大的调整,呈现不断完善、严格的趋势。
《大明会典》卷一百八十一记载,弘治八年定王府制:前门五间、端礼门五间、承运门五间、前殿七间、穿堂五间、后殿七间、宫门三间、前寝宫五间、穿堂七间、后寝宫五间,宫后门三间[8](见图1)。明代亲王府实际是仿照皇宫建造的宫城。

图1明弘治朝亲王王府城垣及前殿后宫平面推测
《大明会典》卷一百八十一记载,天顺四年定郡王府制:每位盖府屋共四十六间,前门楼三间,中门楼一间,前厅房五间,后厅房五间[9]。
明代《桂林郡志》记载,靖江郡王府中轴线上有端礼门、承运门、承运殿、宫门、寝宫[10]。山东济南发掘了明代宁阳郡王府遗址,府邸中轴线上应有五间大门、五间前厅房、五间后厅房,应该还有一座五开间的阁楼[11]。
河南开封发掘了明代永宁王府遗址,府邸中轴线上有五间大门、照壁、三间仪门、五间前厅房、五间后厅房、花园[12]。这些府邸中虽有个别房屋的开间大于规制,或者有些配置突破规制,但中轴线上主要建筑的重数是遵循《明会典》中郡王府规制的。
《大明会典》卷六十二记载,洪武年间定公侯府制:前厅七间或五间、中堂七间、后堂七间,门屋三间。其余廊庑库厨从屋等房从宜盖造。定一品、二品官府制:厅堂五间,门屋三间[13]。
从《大明会典》的记载看,郡王府邸的规制低于公侯。实际明代郡王和公侯属于两套封爵体系。《明史》记载,明代亲王除嫡长子外的诸子,年十岁,封为郡王,冠服视一品。所以明代郡王府邸等级应该比同“一品”官[14]。
山东曲阜的衍圣公府(孔府),应是现存最为完整的的明代公爵府邸。孔府分为三路,中路有大门、仪门、塞门[15](重光门)、大堂、二堂、三堂、内宅门(内仪门)、前上房、垂珠门、前堂楼、后堂楼、后五间(见图2)[16]。孔府中路有大门、仪门、塞门、内宅门、垂珠门等五道门,这在明代典章中没有规定。

图2孔府官署部分平面分析图
孔府的中路也分为“前朝后寝”两部分。“前朝”有大堂、二堂、三堂等三座建筑。“后寝”有前上房至后五间等四座建筑。
由此分析,明代典章规定的应是公侯府邸的“前朝”部分,府主可据实际情况对“后寝”私邸部分相对灵活处理。对此,明清地方衙署的建造情况可做对比参照;在明清典章中,也只规定了地方衙署的前部官署部分,对内宅私邸没有详细规定。所以明清地方衙署的后宅私邸部分建筑层次也是相对丰富的(见图15、图17)。
清代在明代的基础上做了进一步的明确。清代从康熙朝至乾隆朝,宗法礼制和等级制度在王公府邸的建筑上有了更详细的体现,乾隆时期的府第规制已趋于完善,清后期光绪年间的规定最详尽。这些在《八旗通志》《清实录》《钦定大清会典》《钦定大清会典则例》等文献中都有充分的体现。

图3《钦定大清会典》对王公府邸规制的记载
乾隆朝《钦定大清会典》卷七十二记载了清代王公府邸的建筑规制(见图3),明确规定了王公府邸的主路由大门、正殿、后殿、后寝、后罩五(四)座重要建筑组成,并明确规定了这些主要建筑的间数(如表1),以及基高、屋顶形式到彩画、门钉等[17]。

表1
由表1可以清楚地看出乾隆朝规制中各王公府邸的等级差别。此时不仅在制度上对亲王、郡王、贝勒、贝子、镇国公、辅国公的住宅进行了详尽且强迫性的规定,而且在名称的表述上也等级分明。
亲王与郡王的住宅称王府,贝勒、贝子的住宅只能称府。王府中的主要建筑可以称殿、寝,比如正殿、后殿、后寝,贝勒以下的府内主体建筑只能称为堂屋。
乾隆朝《钦定大清会典则例》卷一百二十七记载了清代崇德、顺治年间王公府邸的建筑规制[18](见图4)。

图4《钦定大清会典则例》对王公府邸规制的记载
表2是顺治年间王公府邸主要建筑的间数。从中可以发现,清代前期亲王府中路上有6座重要建筑。而乾隆朝《钦定大清会典》中已经改为五座,“共屋五重”。

表2
其实,从汉唐、明、清,王公府邸的建筑规制就呈现越来越严格的趋势。乾隆皇帝曾说,“夫例可通,典不可变”,“于是区会典、则例各为之部,而辅以行”。
也就是说,《钦定大清会典》规定了典章制度,《钦定大清会典则例》记载了王府的沿革和变动情况,这两个规定是相辅相成的。
从《钦定大清会典》《钦定大清会典则例》的记载看,王府由大门至后罩楼组成的院落成为判断王府建筑等级一个明显标注。
刘大可、吴承越两位先生根据《大清会典则例》绘制了“标准王府”主路建筑布局图(见图5)[19],从图中可以更直观地了解亲王府主路建筑的布局及开间等。

图5符合制度规定的“标准王府”(根据《大清会典则例》亲王府制绘制)
乾隆十五年(1750年)绘制的《乾隆京城全图》,可以清晰直观的展现清代王公府邸的具体位置和开间规模。

图6和亲王府图
结合部分现存实物,可以发现,和亲王府(见图6)[20]、恒亲王府(见图7)[21]、端重亲王府、雍亲王府、孚郡王府(见图21)等大部分府邸,都是严格遵照《清会典》等规定建造的,主路上有大门、正殿、后殿、后寝、后罩等五座建筑——即“殿寝五重”。

图7恒亲王府图
其主要建筑的间数等也是符合规制的。

二、宁荣二府的建筑规制
《红楼梦》书中明确交代宁国府中路有大门、仪门、大厅(暖阁[22])、内厅、内三门、内仪门、内塞门,正堂。大门三间,正堂五间。书中只是直接交代荣国府中路有大门、仪门、大厅(暖阁)、内仪门、荣禧堂。
笔者在《〈红楼梦〉贾府建筑布局研究》一书中分析,荣国府也是有内厅、内三门、内塞门的,二府中路的布局是一致的,而且宁荣二府都有后罩房(见图8)。

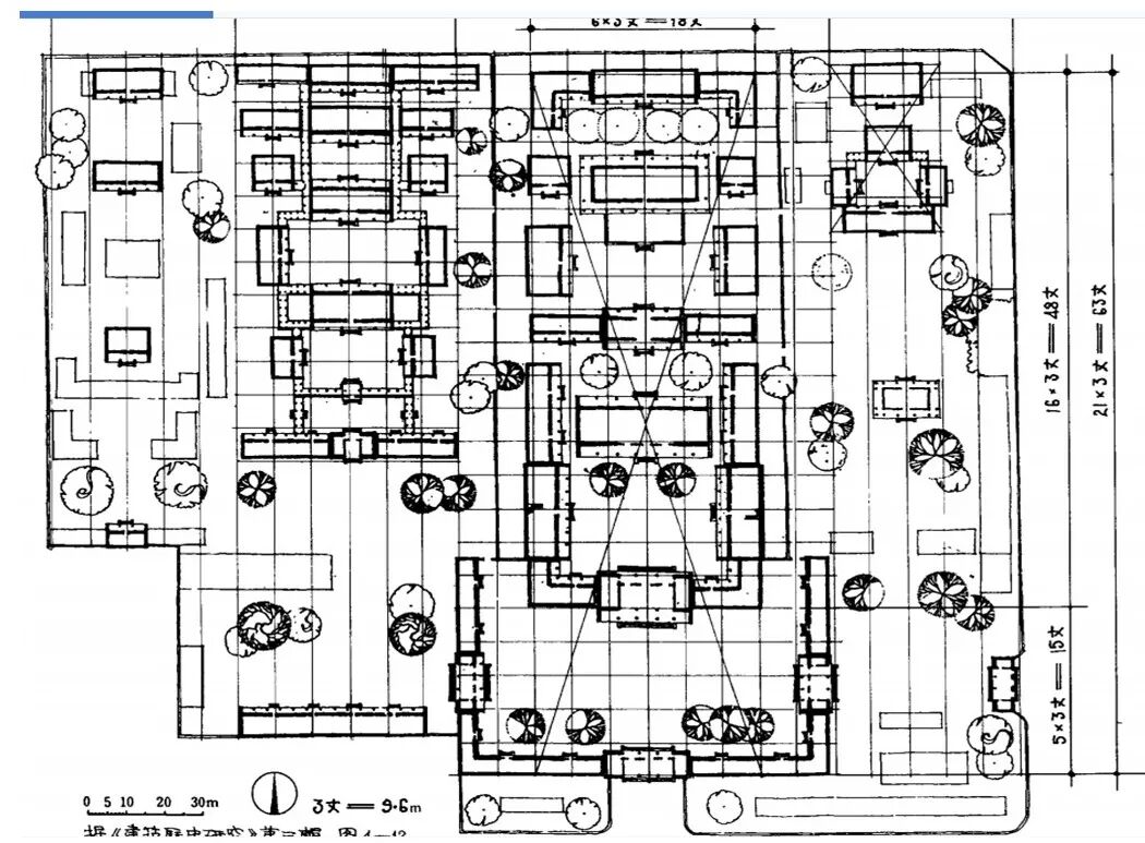
图8贾府建大观园前总平面图
很明显,宁国府的建筑规制远远低于明代亲王府。宁国府中路有大厅、内厅、正堂、后罩房四重主要建筑,实际高于明代郡王府前厅、后厅两重建筑的规制。宁国府大厅、后堂都是五间,低于明代公侯府邸厅堂七间的规制。
宁国府中路有大门、仪门、内三门、内仪门、内塞门,孔府中路也有大门、仪门、塞门、内宅门、垂珠门等五道门。
下文会分析这应是明清时期王公府邸的一种习惯作法。按照“前朝后寝”的划分来分析宁国府,其“前朝”部分有大厅、内厅,而孔府有大堂、二堂、三堂。宁国府的“后寝”部分有正堂、后罩房,而孔府有前上房到后五间等四座建筑。宁国府的规制也明显低于孔府。
无论从《大明会典》的记载,还是明代的建筑实践来看,都表明宁荣两府并不符合明代的建筑规制。
《钦定大清会典》规定王公府邸中路的大门、正殿、后殿、后寝、后罩等五(四)座建筑。宁荣二府的中路比王府规制尚多仪门、内三门、内仪门、内塞门等四座门户(见图9)。这也导致有些人认为宁荣二府的规制远远高于清代王府。

图9宁荣二府五道礼仪之门分析图
其实对《乾隆京城全图》中或现存的王公府邸比较分析会发现,典章制度主要约束主路上的五(四)座主要建筑,对设几道门相对宽松。

图10礼亲王府图
比如礼亲王府(见图10)中路有大门[23]、仪门、正殿、后殿、内仪门、寝殿、后罩楼,比规制分别多一道仪门、内仪门。恭亲王府、果亲王府、安亲王府、肃亲王府(见图23)在大门与正殿之间设有仪门。

图11豫亲王府图
裕亲王府、豫亲王府(见图11)在后殿和寝殿之间设一道寝门[24],敬谨亲王府、平郡王府(见图12)等把后殿改为寝门[25]。

图12平郡王府图
庄亲王府(见图13)甚至在寝殿和后罩楼之间有一道门[26]。

图13庄亲王府图
辅国公巴尔堪府(见图14)有大门[27]、前厅、后堂、后罩房等四座建筑,正符合《钦定大清会典》国公府的规制,但巴尔堪府在前厅和后堂的后身都设有一道门。

图14辅国公巴尔堪府图
由此分析,宁国府中路有大门、大厅、内厅、正堂;大门三间,大厅、正堂等五间。这正符合《钦定大清会典》国公府“堂屋四重”的规制。笔者分析宁荣二府还应有后罩房,二府应是“堂屋五重”(见图8)。
这实际和清代贝勒府的规制相同。这些都表明作者是按照清代的建筑规制设计了宁荣二府。
研究发现,许多清代地方衙署的中路也是“堂屋五重”的布局。
《钦定大清会典》记载,各级衙署的设置为大堂、二堂,外为大门、仪门。但对内宅没有详细规定。许多衙署中路是大门、仪门、大堂、二堂、内仪门、三堂、后罩(见图15)[28]。

图15徐海道署
看《江宁行宫图》(见图16),行宫的中路是大宫门、二宫门、前殿、中殿、三宫门、寝宫、后罩(照)。和宁荣二府中路也是能够对应的。江宁行宫的前身江宁织造署,是曹家三代四人任内务府江宁织造监督的官署和府邸。作者应该就是根据最熟悉的府邸格局设计了宁荣二府。

图16宁荣二府与江宁行宫平面布局比较示意图
研究还可以发现,在古代衙署中路也有五道门的设置。河南清代内乡县衙(见图17)[29],
中路前有辕门,然后有大门、仪门;在大堂和二堂之间设有一个宅门,形成县衙的第三道礼仪之门。

图17内乡县衙图
宅门之后的二堂明间后檐金柱间有供开启的隔扇门,隔扇门在重大节日可以开启,这实际形成了县衙的第四道礼仪之门(见图18)[30];而二堂之后为内宅门,形成县衙的第五道礼仪之门。

图18内乡县衙二堂平面图
牛淑杰分析,内乡县衙的这一设置可能附会了古代宫室建筑中“五门三朝”的形制[31]。内乡县衙是清光绪十八年(1892年)由章炳焘知内乡县事时修建。
章炳焘曾在工部主持工程建设,擅长土木建筑,应该知悉“五门三朝”的形制,肯定也熟知清代地方衙署的建筑规制。
《钦定大清会典》规定地方衙署设大门、仪门、辕门,但并没规定总共要设几道门,而且也没讳制的特别规定。这就给地方衙署在门的设立上带来了一些灵活性。
内乡县衙中路这种灵活性的设置或许是当时官式建筑中的通例。孔府中路有大门、仪门、塞门、内宅门、垂珠门,实际也构成五道礼仪之门,应该也是附会了“五门三朝”的形制。

《宋代州县衙署建筑空间与社会秩序》
位于孟子故里山东邹城的孟府,是孟子嫡系后裔居住和生活的地方。孟府在清康熙朝做了大规模修缮,至道光朝达到今日规模。孟府建筑分为中、西两路。中路轴线上有大门、礼门、仪门(塞门)、大堂、垂花门、世恩堂、后院门、赐书楼、后上房、缘绿楼[32]。
孟子后裔的官秩才为正八品,但孟府中路却有大门、礼门、仪门、垂花门、后院门等五道门,这些都说明“五门”形制的运用在当时并不是个例。
宁荣二府从大门、仪门、内三门、内仪门、内塞门实际也构成了五道礼仪之门(见图9)。有人认为,内三门是内厅后身的一道独立建筑[33]。
笔者分析内三门应是内厅明间后檐金柱间的屏门[34]。这和内乡县衙二堂内的隔扇门是同样的建筑元素(见图18)。
宁荣二府的内仪门内应该没有屏门,而是在门内设了一个木照壁。然后在照壁上开门,节日可以打开,这个门就是内塞门[35]。故宫寿康门内设有一个木照壁,照壁上设有隔扇门(见图19)[36]。

图19故宫寿康门内的木照壁
故宫养心门内木照壁上也设有隔扇门(图20)[37]。宁荣二府的内塞门应该就类似于这种隔扇门。宁荣二府五道门的设置肯定有现实的生活来源,而不是凭空想象的。曹雪芹的曾祖曹玺曾任内务府营缮司郎中。

图20故宫养心门内木照壁上的隔扇门
祖父曹寅在任内务府郎中时,曾负责园亭工程,监修畅春园西花园,以及永宁寺、六郎庄圣化寺等。他们肯定非常熟悉宫廷营造体系及府园的建筑规制。作者曹雪芹自幼受此熏陶,肯定也熟悉清代的建筑实际,从而将现实建筑礼制艺术化的呈现于书中。

三、宁荣二府的建筑规模
《大清会典》等典章制度对王公府邸主路建筑规制虽有严格规定,但“并不死板。比如两朝(乾隆、光绪)都规定主路主要建筑的间数,但都没有规定开间尺寸”[38],也没有规定整个王府的规模。
府主在建造府邸时可以据实际场地情况对院落、房屋大小作一些适应性调整。虽然因为场地等原因导致王公府邸的规模存在差异,但其规模的规划、控制却不是无序、随意的。
近些年,这方面也有了大量的研究成果,比如王贵祥著《中国古代建筑基址规模研究》,王南著《规矩方圆天地之和:中国古代都城、建筑群与单体建筑之构图比例研究》[39]等等。
傅熹年在《中国古代城市规划、建筑群布局及建筑设计方法研究》一书中分析,中国古代城市规划、大型建筑群以及单体建筑的规模控制是有固定模数的。
比如衍圣公府(见图2)、孚郡王府(见图21)在建造时[40],平面布局以3丈为模数做基地网格,即按照方三丈的方格网(一丈为3.2米,一个方格是9.6米×9.6米)为布置基准,控制王府总建筑群中的单体建筑的相对位置和院落的大小位置。

图21北京清末孚郡王府平面分析图
通过实测图做3丈的网格,可发现孚郡王府在南北方向的网格数量为整数,即21个格。各殿宇之间也有着相应的准确网格数,如正殿到后照楼的四座殿宇之间所形成的3进院落都宽6格。
从孚郡王府、摄政王府、雍亲王府的院落分析,这些都是规划王府的共用手法。
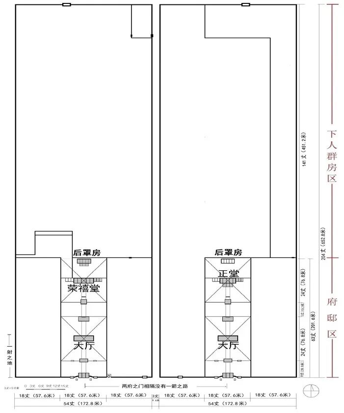
由此可以按照方三丈的方格网为布置基准来分析宁荣二府的总体规模。《红楼梦》第七十五回描写,宁荣二府大门相隔不到“一箭之路”。
由此可以推断,宁荣二府的东西宽度应小于“一箭之路”。第三回,林黛玉进荣府,走了“一射之地”后落轿拐弯,我们可以从“一射之地”来分析二府的南北深度。
《辞源》中注释:一箭之地为一百五十步,或云百三十步,或云百二十步[41]。旧时营造尺以五尺为步[42]。一营造尺合0.32公尺[43]。就此计算,150步就是240米,120步就是192米。
从孚郡王府的网格图(图21)看,不算其最西一路,其东、中、西三路占21个格,201.6米。恭王府分为三路,东西宽度约为180米左右[44]。
结合“一箭之地”的解释,按照方三丈的方格网为布置基准,宁荣二府的东西宽度可各占18个格,172.8米;这样二府之门的距离为182.4米,小于“一箭之路”192米的距离(见图22)。

图22宁荣二府规模分析图
林黛玉进荣府,是在大厅后身“停轿拐弯”,“一射之地”应是荣府大门到大厅后身的距离[45]。
看《江宁行宫图》,江宁行宫大门到大厅后身,和行宫西南方位箭道的长度是一致的(见图16)。
这表明一射之地和江宁行宫的箭道存在对应关系。王世仁、雷允陆两位先生考证江宁行宫箭道的长度是64米[46]。徐海道署衙门内箭道应为85米左右(见图15)。
《大清会典则例·武科》中规定步射作为考试的内容。康熙年间武进士步射的距离为50步,合80米。江宁织造署建在康熙年间[47],这样江宁织造署箭道的长度可以推测为80米。由此可推测“一射之地”为80米。

《大清会典》
宁荣二府从大门至大厅后身这一空间南北长度可推测为80米左右。由此可推测二府从大门到仪门深3个格,28.8米;从仪门到内厅深8个格,76.8米;从内厅到内仪门深2个格,19.2米;从内仪门到后罩房深8个格,76.8米;从大门至后罩房共深21个格,201.6米。这样宁荣二府从大门到后罩房这部分空间的面积各为34836.48平方米,合52.3亩(见图22)。
这和北京清代王公府邸的大小(孚郡王府南北深21个格,恭王府府邸部分面积约为48亩)基本相符。
从以上分析看,宁荣二府后罩房南边这部分空间,无论布局还是大小,均符合清代王公府邸的标准。
在宁荣二府后罩房的北边还有很大的空间。很多人认为国公府邸不该有这么大的规模。
从《乾隆京城全图》或现存实物来看,很多王公府邸都有花园,其位置和规模也不尽相同。比如恭亲王府北部有非常大的花园;醇亲王北府的西面也有个比较大的花园。
恒亲王府(见图7)、雍亲王府、果亲王府的辅路建筑和花园都非常大。在肃亲王府(图23)庞大的院落内[48],主路建筑只占比较小的一部分。

图23肃亲王府图
弘暻贝子府(见图24)[49],园林几乎占整个府邸的60%,而且有大面积的水面;整个府邸构成东南突出的不规则形状。

图24弘暻贝子府图
这些都说明,制度主要约束主路建筑的规制,辅路建筑及花园的建设相对自由。宁荣二府在建造之初是完全可以拥有较大地块的。二府南部的府邸核心区相对较小,恰恰说明是遵循规制建造的。
所以应将宁荣二府的核心府邸区和北部下人群房区分开考虑(见图8、图22)。
笔者在《<红楼梦>贾府建筑布局研究》书中分析了大观园的四至范围和建筑规模。《红楼梦》书中描写,贾府从东边一带,借着东府的花园起,转至北边,丈量准了“三里半大”的基址来建造大观园。
这其实是一个不规则的地块(见图8、图25)。古代文献中习惯用地块的周长或者加各个边的长度来表示地块大小。

图25贾府丈量建园基址规模及大观园规模构图比例分析图
比如《唐两京城坊考》记载:唐东都苑,周一百二十六里,东面十七里,南面三十九里,西面五十里,北面二十里[50](见图26)。

图26唐东都苑规模示意图
这表明唐东都苑也是一个不规则的地块,而且用周长来表示其规模大小。借此分析,所谓“三里半大”应是这个不规则地块的周长。
周代制度6尺为步,300步为里。唐代以后5尺为步,360步为里。不过历朝历代“尺”的具体长度也是变化的。
光绪《钦定大清会典》也说“以营造尺起度,五尺为步,三百六十步为里[51]”。按照1营造尺0.32米计算,1里为576米,三里半大应为2016米。宁荣二府的面阔实际限定了所丈量基址的东西宽度。
按照方三丈方格网为布置基准,贾府所丈量建园基址的面阔大体可定为37个格,355.2米,由此计算所丈量的基址进深为68个格,652.8米。这也就是宁荣二府的进深。
由此计算,宁荣二府的面积各为112803.84平方米,约合169亩(见图25、图22)。

四、结语
综上,本文梳理了《大明会典》《钦定大清会典》等典章制度有关王公府邸的建筑规制。宁荣二府中路有大门、大厅、内厅、正堂、后罩楼,即堂屋五重,和清代贝勒府的规制相同。
宁荣二府中路有大门、仪门、内三门、内仪门、内塞门等五道礼仪之门,也应是清代王公府邸、衙署的一种习惯作法。古代大型建筑群的规模控制是有固定模数的。

《大明会典》
通过对清代府园的分析解读,本文厘清了作者设定“一箭之地”“一射之地”“三里半大”的涵义,以方三丈的方格网为布置基准,分析宁荣二府府邸核心区的面阔各为172.8米、进深201.6米,这和清代王公府邸的规模大小是基本相符的。
清代王公府邸中,除主路建筑外,也多有较大的空间,其建筑也相对自由、随意。宁荣二府北部的较大空间,并不违反规制。这都表明宁荣二府是按照清代王公府邸的规制设计的。两府平面布局符合中国古建的组织规则,也符合古代建筑群的控制标准(见图25)。
这些论述也说明,作者曹雪芹充分了解中国古建建筑规则,清代的封爵制度、建筑的实际情况。

《北京建筑史》
从《红楼梦》书中描写看,作者对王公贵族的家院格局,内院女眷的日常生活都非常熟悉。曹雪芹的生活不只有穷困潦倒。曹雪芹自小在江宁织造署过着锦衣玉食的富贵生活。
虽然后来落魄到京城,但曹雪芹两个姑母皆为王妃,又有不少达官显贵的亲戚,应该和他们有充分的交往。
曹雪芹有超人的观察能力与移情能力,能够将其所见的世爵制度、王公生活情况细腻生动地再现到自己的笔下,为我们提供了一幅清代京师上层社会生活的生动画卷[52]。
注释:
[1] 黄云皓:《图解红楼梦建筑意象》,中国建筑工业出版社2006版;《数字绘画作品〈红楼梦大观园全景意象图〉创作谈》,微信公众号“红迷会”,2024-11-8。樊志斌:《〈红楼梦〉中贾府、大观园方位写作不误》,《曹雪芹研究》2021年4期;《贾府的空间格局、建筑安排与故事演进书写》,《曹雪芹研究》2024年第4期。李艳芳:《〈红楼梦〉里梦红楼——贾府及大观园平面布局研究》,河北工程大学2015年硕士学位论文。奚沛翀、何云波:《包衣眼界:论〈红楼梦〉的贵族世家府邸营运书写》,《曹雪芹研究》2022年1期。
[2] 邱凡:《北京清代亲王府建筑空间形态研究》,北京建筑大学2016年硕士学位论文。王夫帅:《北京清代郡王府的空间形态与建筑研究》,北京建筑大学2016年硕士学位论文。郭祉坚:《北京清代贝勒贝子府建筑形态研究》,北京建筑大学2016年硕士学位论文。房文凡:《清代北京镇国公府、辅国公府建筑空间形态及其保护利用研究研究》,北京建筑大学2022年硕士学位论文。无论看《乾隆京城全图》,还是现存实物,清代王府相对比较完整、清晰,而郡王、贝勒、贝子、国公府邸保存都不够完整,所以本文还是以清代王府为主要参考对象。
[3] 徐建平:《〈红楼梦〉贾府建筑布局研究》,北京联合出版公司2023年版。
[4] 王贵祥:《中国古代建筑基址规模研究》,中国建筑工业出版社2008年版,第6页。
[5] 傅熹年:《中国古代城市规划、建筑群布局及建筑设计方法研究》(上册),中国建筑工业出版社2001年版。第78页。
[6]王贵祥:《中国古代建筑基址规模研究》,第94页。
[7]王贵祥:《中国古代建筑基址规模研究》,第98页。
[8] [明]申时行修,[明]赵用贤纂:《大明会典》卷一百八十一,明万历十五年内府刻本,叶十二至叶十三。
[9] [明]申时行修,[明]赵用贤纂:《大明会典》卷一百八十一,叶十三。
[10] 蔡宇琨:《桂林靖江王府研究及其保护初探》,北京大学2008年硕士生研究生学位论文。
[11] 乔显佳:《明代王府大院是啥模样?济南闹市考古发现宁海王府和宁阳王府基址》,《齐鲁晚报》2011年12月21日。
[12]王三营:《河南开封发掘明代永宁王府遗址》,《中国文物报》2019年8月23日。
[13] [明]申时行修,[明]赵用贤纂:《大明会典》卷六十二,叶二至三
[14]王贵祥:《中国古代建筑基址规模研究》,第103页。
[15] “塞门”早在《周礼》中就有定制,帝王及各诸侯国公方可建立塞门。此门始建于明弘治十六年(1503年)。旧时称之为“垂珠门”。 因皇帝御赐“恩赐重光”匾额,故称为“重光门”。
[16]傅熹年:《中国古代城市规划、建筑群布局及建筑设计方法研究》(下册),第90页。
[17] 乾隆《钦定大清会典》卷七十二,清乾隆文渊阁四库全书钞本,叶三至五。
[18]乾隆《钦定大清会典则例》卷一百二十七,清乾隆文渊阁四库全书钞本,叶十三至十五。
[19] 刘大可、吴承越:《清代的王府(上)》,《古建园林技术》,1997年第1期。
[20] 邱凡:《北京清代亲王府建筑空间形态研究》。
[21] 邱凡:《北京清代亲王府建筑空间形态研究》。
[22] 这个“暖阁”是冬天在大厅明间正中为保暖而临时设立的用木围护结构分隔出来的小间。见黄云皓:《图解红楼梦建筑意象》,第130页。
[23]邱凡:《北京清代亲王府建筑空间形态研究》。
[24]邱凡:《北京清代亲王府建筑空间形态研究》。
[25]王夫帅:《北京清代郡王府的空间形态与建筑研究》。平郡王府系作者曹雪芹的姑父纳尔苏的府邸。纳尔苏系礼亲王代善的后人,纳尔苏与曹氏所生长子福彭曾为乾隆帝的陪读。
[26]邱凡:《北京清代亲王府建筑空间形态研究》。
[27]房文凡:《清代北京镇国公府、辅国公府建筑空间形态及其保护利用研究研究》。
[28]徐建国:《从道台衙门风貌解析清代徐州行政场所功能》,徐州日报社多媒体数字版,http://epaper.cnxz.com.cn/pczm/html/2013-07/20/content_163801.htm(2024-11-8)。
[29]刘鹏九主编《内乡县衙与衙门文化》,中州古籍出版社1999年版,附图。
[30]牛淑杰:《明清时期衙署建筑制度研究——以豫西南现存衙署建筑为例》,西安建筑科技大学2003年硕士学位论文。
[31]牛淑杰:《明清时期衙署建筑制度研究——以豫西南现存衙署建筑为例》。
[32]张苗:《山东邹城孟庙、孟府、孟林建筑研究》,天津大学2011年硕士学位论文。
[33]黄云皓:《图解红楼梦建筑意象》,第23页。
[34]徐建平:《〈红楼梦〉贾府建筑布局研究》,第74页。
[35]徐建平:《〈红楼梦〉贾府建筑布局研究》,第127页。
[36]无心镇:《故宫寿康宫》,网易号,https://www.163.com/dy/article/D9LJHM8O0523NGA9.html,2024-11-04。
[37]蔓萝花:《走进故宫——养心殿》,个人图书馆,http://www.360doc.com/content/23/0827/18/1094100656_1094100656.shtml,2024-10-31。
[38] 邵立芳、戴俭:《清王府规制及其适应性调整》,《中外建筑》2013年第6期。
[39] 王南:《规矩方圆天地之和:中国古代都城、建筑群与单体建筑之构图比例研究》,中国城市出版社、中国建筑工业出版社2018年版。
[40]傅熹年:《中国古代城市规划、建筑群布局及建筑设计方法研究》下册,第92页。
[41]《辞源》,商务印书馆2009年版,第12页。
[42]《辞源》,第1820页。
[43]《辞源》,第2141页。
[44]刘临安、陆翔:《北京王府建筑》,中国建筑工业出版社2016年版,第96页。
[45]徐建平:《〈红楼梦〉贾府建筑布局研究》,第77页。
[46]王世仁、雷允陆:《曹园简说——江宁织造署为〈红楼梦〉荣国府原型推测》,《古建园林技术》1995年第2期,第30-36页。
[47] 吴新雷、黄进德:《江宁织造府与红学》,《红楼梦学刊》2009年第3辑。
[48]邱凡:《北京清代亲王府建筑空间形态研究》
[49]郭祉坚:《北京清代贝勒贝子府建筑形态研究》
[50][清]徐松:《唐两京城坊考》卷5,中华书局1985年版,第143页。
[51]吴承洛原著,程理濬修订:《中国度量衡史》,商务印书馆1957年版, 第116、117页。
[52] 樊志斌:《〈红楼梦〉中的爵位承袭书写》,《河南教育学院学报(哲学社会学版)》2022年6期。