项目面积110平,项目坐标:江苏·南京,设计师说在前面:本案是一套精装房改造案例,屋主是一对90后的年轻夫妻。女业主从事创意摄影工作,对审美有要求,希望通过设计改造将原本的精装房打造成日常居家兼办公的深色系质感新居

▲ 原始结构图

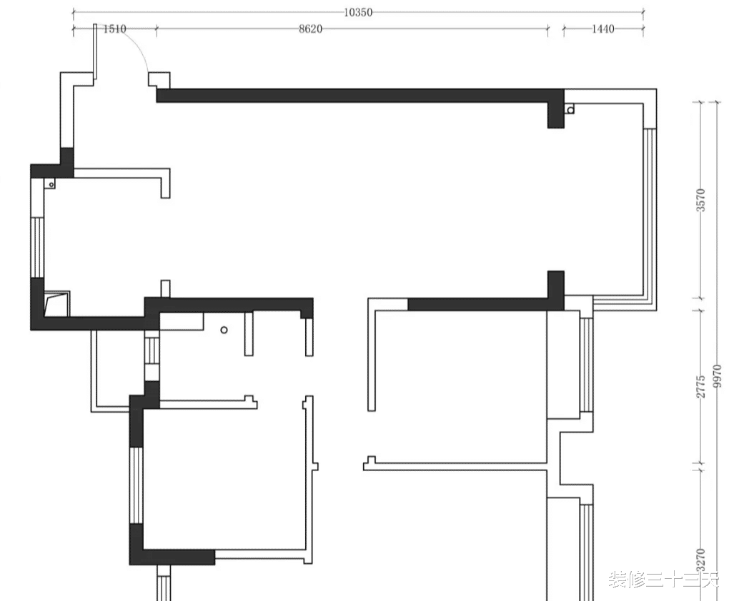
▲ 平面布置图
户型改造亮点:
①拆除一间小次卧,部分与主卧融合,主卧内打造超大储物量衣柜;
②小次卧剩余空间改成开放式书房,悬浮书桌与异形隔断相连;
③扩大主卫,干湿分离加浴缸设计,提高屋主生活幸福感;
④客餐厅一体,搭配阳台落地窗,采光好又显大;

▲ 进门处设置极简黑色玄关柜,中部镂空放置日常用品,随手拿取超方便

▲ 入户就是餐厅,深色饰面沉稳低调,岩板肌理细腻,定制岛台餐桌居中而置,洄游动线提升灵活性和便利性

▲ 黑胡桃木餐桌搭配极简风餐椅,碰撞出低调优雅的质感。吊灯在餐桌的正上方,暖光刚好可以打在食物上,看起来更有食欲

▲ 利用高低差在岛台侧面安装轨道插座,满足餐桌用电需求

▲ 沿墙定制餐边柜,操作区内嵌灯带,氛围感十足,一旁安置冰箱,解放厨房操作空间

▲ 餐厅紧邻厨房,备餐用餐动线流畅。厨房采用钢化玻璃门,隔绝油烟和噪音的同时,还利于清洁打理

▲ 厨房以沉稳的黑灰色为主调,整体看起来高级,高低台设计符合人体工程学

▲ 客厅和阳台打通,通铺木地板,显大通透脚感好

▲ 地毯宽度大于沙发,让起居的尺度和气氛更加亲切。无主灯设计,利用灯带、防眩射灯提供照明,再搭配落地灯增添氛围感

▲ 自带边几的沙发可以盛放小茶点

▲ 阳台一侧设计家政柜,洗烘套装叠放嵌入,整洁又美观

▲ 以木色打底,白色异形造型围合的隔断墙,一面为电视背景墙,一面为书房墙体,充满艺术设计感

▲ 电视机内嵌式设计,不留缝不凸出,与背景墙黑白呼应,层次感十足

▲ 电视机背景墙旁边有一面木质异形隔断,延伸至书房,颇具极简造型感

▲ 木质结构与书桌穿插,虽为开放式书房,也具备一定私密性

▲ L形布局的开放式书房,书桌上方安装可调节角度和高度的金属摇臂灯,灯罩口朝下,可以让灯光更好的聚焦。通过加宽飘窗打造木质卡座,休闲的同时可置放图书

▲ 从书房看客餐厅

▲ 次卫干湿分离,一体式台盆搭配墙排龙头,既满足了美观性的需求,又便于日常打理

▲ 从餐厅可以看到卧室的隐形门,关闭时与墙面融为一体

▲ 通过口袋门进入主卧,顶部弧面处理,让空间更为温润流畅。床尾打造整面衣柜,满足屋主的衣物储藏需求

▲ 梳妆台置于床尾一侧,与收纳柜的一体式设计

▲ 床头黑色木饰面半墙内嵌灯带,营造舒适静谧的睡眠环境
▲ 主卫采用黑色玻璃门,不仅具备私密性,也与整屋格调契合

▲ 扩大主卫布局,台下盆的设计简约耐看,暖色调灯光温暖舒适

▲ 浴缸上方打造壁龛作为收纳空间,用来放置各种小物,百叶窗搭配玻璃防窥膜,确保隐私安全