农贸市场不仅是承载居民日常烟火气的重要空间,更直接关系到食材安全、民生福祉与区域经济的微循环。当传统农贸市场里“食材从哪来、是否够新鲜”的疑问,遇上智慧技术的赋能,一场关于信任的重构悄然发生。


阿拉善智慧生鲜集散中心由我公司一体化设计与智慧化打造,旨在构建一座兼具地域特色、功能完备与科技赋能的现代化生鲜交易平台。

项目概况
本项目坐落于内蒙古自治区阿拉善盟阿拉善左旗核心区域,具体位于曼德拉路以东,紧邻恒正小区。
地块周边交通路网密集,多条城市道路交织环绕,无论是周边居民日常出行采购,还是外来生鲜产品的运输集散,都具备极为便捷的交通条件,有效辐射周边多个社区及更远范围的消费群体。

规划设计
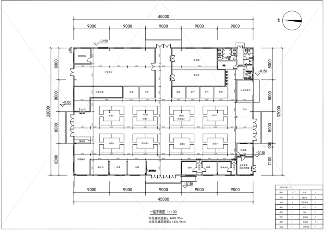
项目总用地面积为3000㎡,约合4.50亩,总建筑面积达1470.96㎡。根据区域功能定位与生鲜交易的实际需求,项目拟建层数为一层,主体功能为智慧生鲜集散中心。
在项目规划阶段,佳昊设计团队充分了解市场需求,对项目的功能定位、建设规模与配套设施进行了全面统筹,确保项目建设符合区域发展规划,同时具备良好的经济与社会效益。

平面布局
平面布局设计紧密围绕生鲜集散中心的核心功能展开,以“高效流通、分区明确、动线合理”为核心目标,对各项功能区域进行科学划分与有机衔接。致力于打造便于经营商户分类经营,也方便消费者快速找到所需产品,提升市场的交易效率。

设计效果
在外观设计上,项目以简洁明快的建筑形体营造出鲜活而不失沉稳的视觉效果,独特的线条勾勒赋予建筑鲜明记忆点,极具辨识度,与周边环境和谐相融。



内部空间设计以柔和照明、通透采光与营造整洁的氛围为抓手,搭配人性化的配套设施,让商户经营更便捷高效,也让消费者在烟火气中更舒适,实现实用功能与体验感的和谐统一。




智慧解决方案
作为全程一体化打造的智慧化生鲜集散中心,该项目全方位融入智慧化解决方案,覆盖交易、管理、监管、农残溯源等多个关键维度。



通过整合智慧化系统与平台,实现市场运营的高效化、规范化与安全化,为消费者体验提升及市场精细化运营提供有力支撑。

落地实拍
项目落地后,整体呈现效果与设计方案高度契合,简洁明快的建筑外观与周边环境和谐共生,内部功能区域划分清晰,动线设计合理顺畅。

实拍场景中,各交易区域井然有序,设施配套能够充分满足商户与消费者的实际需求。智慧化系统运行稳定,全方位保障了市场的有序运营与食品安全。这也充分验证了项目设计的科学性、合理性与实用性,实现了设计理念与实际运营的完美衔接。




阿拉善智慧生鲜集散中心的成功落地,不仅为当地打造了一座功能完备、环境优越、科技赋能的现代化生鲜交易平台,更有效提升了区域生鲜流通效率,保障了食品安全,为当地居民提供了更优质的民生服务。
该项目的建成也为我司在智慧农贸市场一体化设计领域积累了宝贵的实践经验,进一步彰显了公司在智慧商业设施建设领域的专业实力。未来,我们期待能以成熟的技术方案、丰富的实践经验和严谨的服务态度,赋能更多农贸市场实现数字化转型与升级。