游戏百科
一个户型的五种不同布局
2025-11-26 00:16:15
设计师人厘米酱
家居
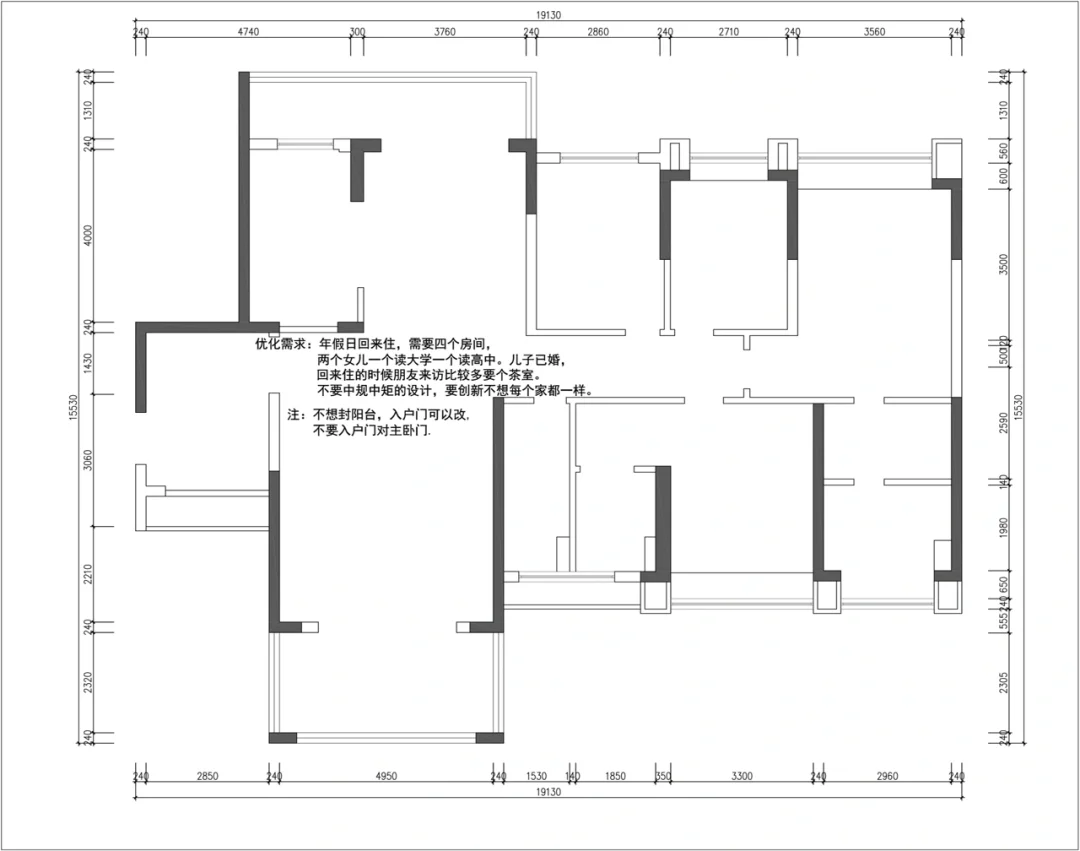
设计要求: 年假日回来住,当度假房,需要四房 两个女儿,一个读大学一个读高中,儿子已婚 回来的时候来访朋友较多,需要一个茶室 不要中规中矩的设计,要创新想要每个家都不一样 注: 不想封阳台,入户门可以改 入户门不对主卧门
猜你喜欢
在广州南沙买房真的把我坑惨了!一年丢了100万!我一个前同事现在恨死南沙房价
2025-11-09
祺然评趣
标签:
广州市
购房置业
房价
广州房地产动态
这两个户型,价格一样你会怎么选?叠墅大平层[大笑][大笑][大笑]
2025-11-05
怜云夜谈汽车啊
几乎满分的户型是我理想中的家园户型
2025-11-18
有匪君子尔尔
朋友在最高峰,也就是2022年,把深圳白石洲的房子卖了回老家。他历时三年修建的大
2025-11-25
股锋
标签:
深圳市
白石洲
别墅
侯耀华现在是真穷到家了,自己连个房子都没有,就连住的别墅都是租来的。我们都知
2025-11-25
问萍激情燃烧
标签:
别墅
北京
这户型,也太戳人了!169㎡才疏学浅,看不懂这户人家的六联横厅,煮一壶热茶配这仙
2025-11-24
里二户型改造说
双拼演技好不好,看手法,一个门洞封住了,三居室太幸福了,把公区划分南半球,大家看
2025-11-25
里二户型改造说
标签:
蚊子
就成都太古里最中间那个“礼盒”,当年房主张口就要2个亿。开发商给500万,他不
2025-11-26
一个幸存者
标签:
成都
成都房地产动态
成都太古里
热门分类
游戏下载
推荐
热榜
军事
NBA
体育
社会
明星八卦
娱乐
财经
科技
汽车
历史
国际
游戏
动漫
公益
搞笑
商业
互联网
数码
国际足球
房产
家居
时尚
科学探索
职场
育儿
股票
教育
影视
情感
热点
中国军情
武器
中国南海
中国足球
亚洲杯
科比
综合体育
CBA
投资
楼市
大咖秀
外汇
创业
风口
SUV
豪车
概念车
优惠
新能源
美国
欧洲
朝日韩
俄罗斯
孕期
街拍
恋爱攻略
婚姻
正能量