游戏百科
一个户型三个方案—原来卫生间也可以这样做
2025-11-25 00:10:07
设计师人厘米酱
家居
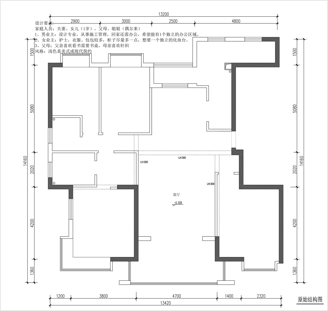
设计要求: 家庭成员:夫妻,一岁女儿,父母,姐姐(偶尔来) 1、男业主:设计专业,从事管理,回家还需办公,希望能1个独立的办公区域。 2、女业主:护士,衣服、包包较多,柜子尽量多一点,想要一个独立的化妆台。 3、父母:父亲喜欢看书需要书桌,母亲喜欢针织 风格:浅色系美式或简约现代
猜你喜欢
天呐!跟电影太适配,痛改三居绝美啊,居住一百平的我,看到230㎡之后感觉像进了酒
2025-11-25
里二户型改造说
标签:
客厅
书房
卧室
厨房
网上刷到一张自建房图纸,号称95分。我一看,差点气笑了。谁家好人把卧室放厨房
2025-11-24
每个角落看日落
标签:
卧室
客厅
厨房
“毛坯房”住成这个样子,无一丝穷酸气。主人真的是很会生活。据说这是云南的
2025-11-24
天曼说娱乐
标签:
毛坯房
装修
五房三卫,南北双阳台,子母门入户。就这?就这还敢叫“理想家园”?我差点笑出声
2025-11-23
风记浪漫
标签:
阳台
wi-fi
热门分类
游戏下载
推荐
热榜
军事
NBA
体育
社会
明星八卦
娱乐
财经
科技
汽车
历史
国际
游戏
动漫
公益
搞笑
商业
互联网
数码
国际足球
房产
家居
时尚
科学探索
职场
育儿
股票
教育
影视
情感
热点
中国军情
武器
中国南海
中国足球
亚洲杯
科比
综合体育
CBA
投资
楼市
大咖秀
外汇
创业
风口
SUV
豪车
概念车
优惠
新能源
美国
欧洲
朝日韩
俄罗斯
孕期
街拍
恋爱攻略
婚姻
正能量