游戏百科
领导不在,就这样!嘻嘻,偷偷发一下
2025-11-23 00:19:18
设计师人厘米酱
家居
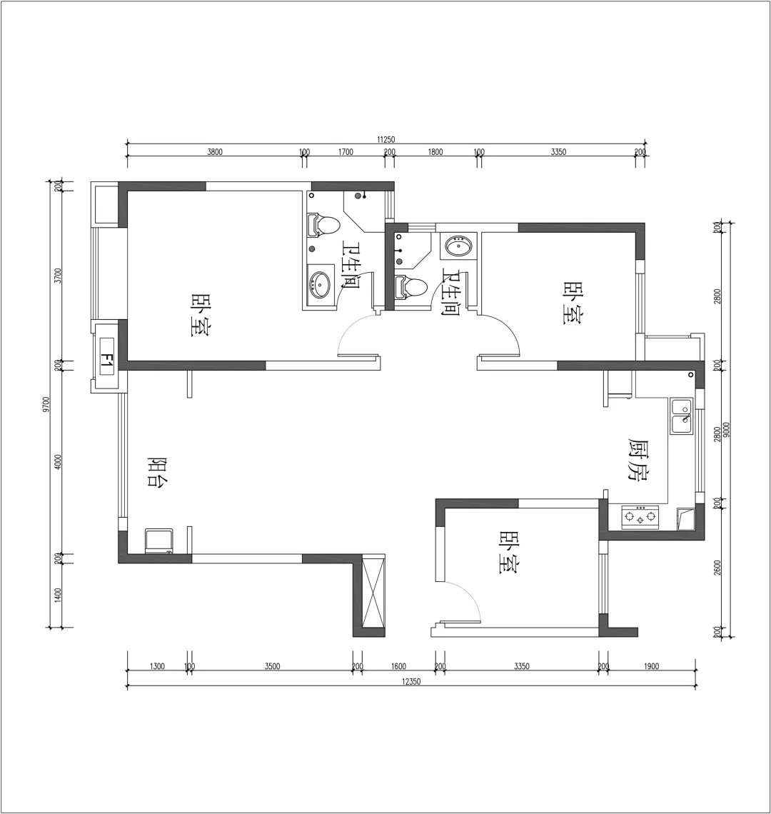
小助理的日常 设计需求 一家三口👨👩👦 1、两个卧室,一个书房兼客房 2、开放式厨房 3、预留钢琴位置 4、阳台可封,预留家政间
热门分类
游戏下载
推荐
热榜
军事
NBA
体育
社会
明星八卦
娱乐
财经
科技
汽车
历史
国际
游戏
动漫
公益
搞笑
商业
互联网
数码
国际足球
房产
家居
时尚
科学探索
职场
育儿
股票
教育
影视
情感
热点
中国军情
武器
中国南海
中国足球
亚洲杯
科比
综合体育
CBA
投资
楼市
大咖秀
外汇
创业
风口
SUV
豪车
概念车
优惠
新能源
美国
欧洲
朝日韩
俄罗斯
孕期
街拍
恋爱攻略
婚姻
正能量