屋主人是一对夫妻,都是忙碌的上班族,有时候即使回家,各自也想要看看书,在各自的领域充充电。因此,回家交流的机会也不是很多。
屋主人未来想要孩子,父母也偶尔会来家里居住,因此想要把89㎡的改成三室两厅。鉴于这对小夫妻的居住情况,设计师将厨房、客厅打通,打造了更大的公共空间,这样两夫妻回家可以相互陪伴而互不影响。改造后,他们感到很满意。一起来看看装修成果吧~

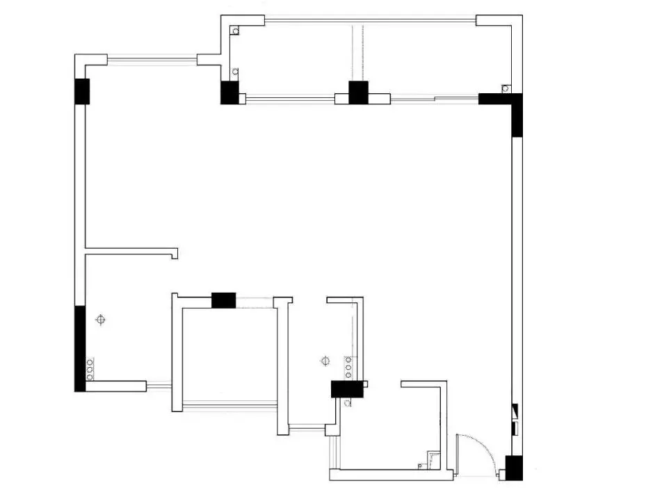
▲原始户型图

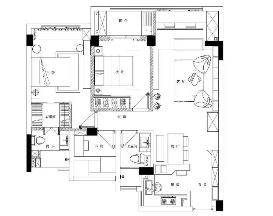
▲平面布置图
客厅

整个风格是现代风格,极简主义。整体装修,没有过多浓墨重彩的刻意装饰,而是都藏在小小细节里,给人一种大方、稳重的感觉。

房间的装修主要是灰、白、黑三种颜色,墙壁主要是白色为主,沙发等软装是浅灰色,茶几、书架等小部分用黑色点缀,使整个房间没有很单调、压抑。客厅的花纹地毯给房间客厅增添了些许活泼气息。

男主人平常因工作需要,因此要看大量的书籍。客厅设置了开放式书架,方便男主人及时阅读。

大面积藏书空间,也满足了男主人日常的阅读需求。
厨房

厨房设置成开放式,由于夫妻俩口味偏淡,在家里做饭的机会也少。因而不会担心特别大油烟的侵入。下班回家,妻子做晚餐,丈夫在客厅阅读,不需要说话,彼此陪伴,就是最好的幸福。
餐厅

旁边的餐桌,也是与客厅装修同色系。

餐桌上方的吊顶,给空间增加了些装饰,富有很强的艺术感。
卧室

穿过餐厅与客厅的的过道就是卧室。卧室墙面上挂了几幅田园装饰画,与卧室整体风格很搭,给卧室增添了安宁的氛围。

配合带灰色的木饰硬包,黑色家具作为配饰点到为止,营造舒适自在的睡眠环境。
书房

由于客厅分担了很大部分客厅的功能,这个书房的配置相对简单些。屋主人需要极度安静的时候,可以在这里看书、工作,累了,可以在一旁小憩。