
听起来像是科幻片里的情节,淘宝居然打算用火箭送快递,还号称未来能实现全球“小时达”。然而这并非玩笑,而是正儿八经推进中的项目,甚至其合作方——箭元科技,已经在杭州落地了火箭总装基地,这一步走得让人直呼“离谱”。

箭元科技是一家民营商业火箭公司,2019年成立,也是国内首家采用“不锈钢箭体+液氧甲烷”方案研制可回收火箭的企业,技术路线和SpaceX的“星舰”有异曲同工之妙,走的正是低成本、高频次发射的路子。

今年4月,他们和淘宝达成合作,共同启动了一项利用可复用火箭运送快递的研发项目。
到了5月,双方就完成了首次验证试验——“元行者一号”全尺寸验证火箭携带20公斤快递包裹,在2.5公里低空飞行125秒后稳稳溅落预定海域,货物完好无损。这次试验的成功,为项目推进打下坚实基础。


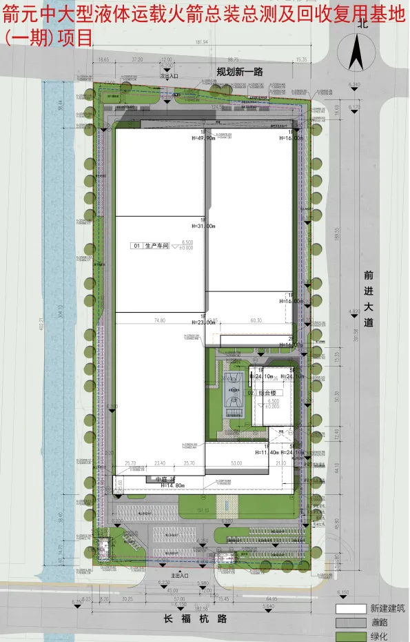
紧接着6月,淘宝官方发布消息,确认快递舱性能达标,技术路线完全可行。有了这样的数据支撑,箭元科技随即在杭州钱塘区前进单元拿下一块7.2万平方米的一类工业用地,正式启动总装总测及回收复用基地的建设。该地块靠近钱塘江,水运条件优越,对大型火箭部件的运输极为有利。


项目目前已进入公示阶段,预计11月底前动工。基地设计充分考虑了航天制造的特殊性,建筑采用大跨度、高荷载结构,能容纳直径4.2米、高近27米的火箭进行总装。

整体风格简约实用,外观选用浅灰色工业板材,内部则划分出总装、测试、仓储等功能区,流程高效清晰。

一旦这项技术成功商业化,未来我们或许真能用上“小时级”送达的洲际快递,那对现有物流体系来说,无疑是一场彻底的颠覆。而杭州这个基地,很可能就是撬动整个长三角火箭物流产业化的第一块跳板。

如果火箭送包裹来了,你最想寄什么?
欢迎分享你的想法!